Votre sélection
0

Toute votre sélection

Évidence Immobilière
Menu
  • Accueil
  • Annonces immobilières
  • Agences
  • Mandats exclusifs
  • Programmes neufs
  • Magazines
  • Digital+
  • Contact
  • Alerte email
+ de détails - de détails
+ de détails - de détails
+ de détails - de détails

Annonce détaillée

Annonce 396 / 2104

« Retour à la liste »

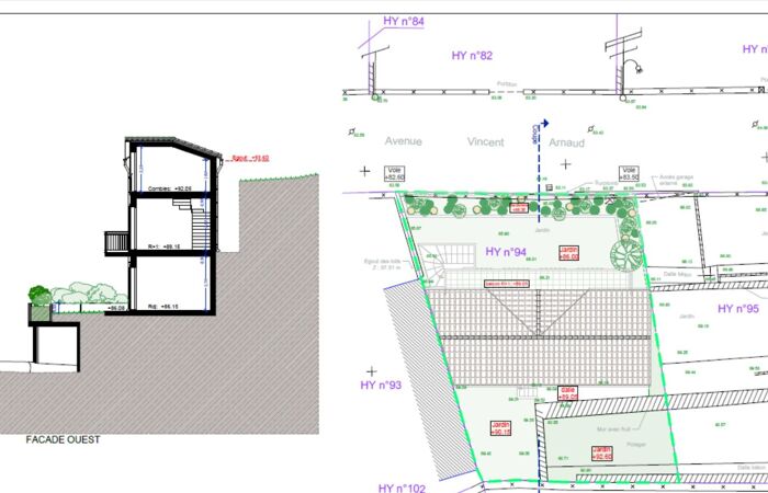
Nice (06000) - Terrain - 205 000 €

Nice (06000)

- 150 m²

NICE -EST : Terrain à bâtir d'une surface de 148m² avec permis de construire validé pour une maison d'environ 92,85 m2m² sur 3 niveaux . 
Cette maison se composerai de deux chambres de plain pieds avec SDE, d'un vaste  séjour avec cuisine ouverte, d'une chambre avec salle de bains. Un garage est également prévu dans ce projet. 
Rare dans le secteur.

Référence : 10011

Informations complémentaires

  • Superficies
    • Superficie terrain : 150 m²

Contactez nous

Pour plus d'informations sur cette annonce, n'hésitez pas à nous contacter

Century 21 Agence Immobiliere Lafage
04 92 00 82 82
Voir la fiche de l'agence
Voir tous les biens
Site de l'agence

Ou via le formulaire de contact :

Annonce 396 / 2104

« Retour à la liste »

    Inscrivez-vous pour recevoir nos newsletter :

    Espace Pro
    • Magazine et site web d’annonces immobilières
    • Actualité immobilière à Nice, Cannes et de la côte d’Azur
    • Mentions Légales et RGPD
    En poursuivant votre navigation, vous acceptez l’utilisation de cookies à des fins statistiques et de personnalisation.J'accepteEn savoir plus