Votre sélection
0

Toute votre sélection

Évidence Immobilière
Menu
  • Accueil
  • Annonces immobilières
  • Agences
  • Mandats exclusifs
  • Programmes neufs
  • Magazines
  • Digital+
  • Contact
  • Alerte email
+ de détails - de détails
+ de détails - de détails
+ de détails - de détails

Annonce détaillée

Annonce 293 / 2105

« Retour à la liste »

Coaraze (06390) - Terrain - 160 000 €

Coaraze (06390)

5 pièces - 1550 m²

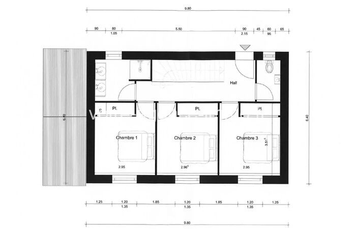
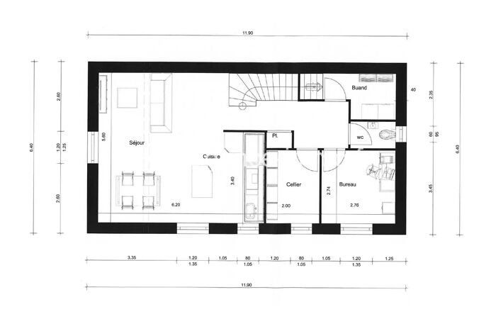
TERRAIN + PERMIS DE CONSTRUIRE - COARAZE Terrain + Permis de Construire - COARAZE Exposé plein sud, ce projet vous séduira par sa position dominante et sa vue dégagée. La construction prévoit une maison individuelle sur 2 niveaux avec garage attenant composée de 5 pièces (3 chambres et 1 bureau + cellier) d'une superficie d'environ 100m2. Raccordement électrique et branchement au réseau d'eau potable au pied du terrain, certificat d'installation d'un système d'assainissement non collectif, études géotechniques ont déjà été réalisées pour une prise de possession immédiate. Coaraze compte parmi les 100 plus beaux villages de France, assure les services de crèche et d'enseignement de la maternelle jusqu'à la primaire. Son bureau de poste, le centre du patrimoine, la maison médicale et la navette pour le collège de contes répondent aux besoins quotidiens ; sans oublier les activités conviviales (associations, bar, restaurants, épicerie, future boulangerie etc..) Les informations sur les risques auxquels ce bien est exposé sont disponibles sur le site Géorisques : georisques.gouv.fr

Référence : 86681183

Informations complémentaires

  • Conditions
    • Prix hors honoraires acquéreur : 150 000 €
    • Honoraires à charge de : acquéreur
    • Pourcentage des honoraires acquéreur : 6,67
  • Environnement
    • Vue : Dégagée
    • Orientation : sud
  • Descriptif
    • Nb. de pièces : 5
  • Superficies
    • Superficie terrain : 1550 m²

Contactez nous

Pour plus d'informations sur cette annonce, n'hésitez pas à nous contacter

Votre Agence Immo
33 69 98 90 35 0
Voir la fiche de l'agence
Voir tous les biens
Site de l'agence

Ou via le formulaire de contact :

Annonce 293 / 2105

« Retour à la liste »

    Inscrivez-vous pour recevoir nos newsletter :

    Espace Pro
    • Magazine et site web d’annonces immobilières
    • Actualité immobilière à Nice, Cannes et de la côte d’Azur
    • Mentions Légales et RGPD
    En poursuivant votre navigation, vous acceptez l’utilisation de cookies à des fins statistiques et de personnalisation.J'accepteEn savoir plus