Votre sélection
0

Toute votre sélection

Évidence Immobilière
Menu
  • Accueil
  • Annonces immobilières
  • Agences
  • Mandats exclusifs
  • Programmes neufs
  • Magazines
  • Digital+
  • Contact
  • Alerte email
+ de détails - de détails
+ de détails - de détails
+ de détails - de détails

Annonce détaillée

Annonce 18 / 27

« Retour à la liste »

Nice (06300) - Appartement - 290 000 €

Nice (06300)

3 pièces - 60 m²

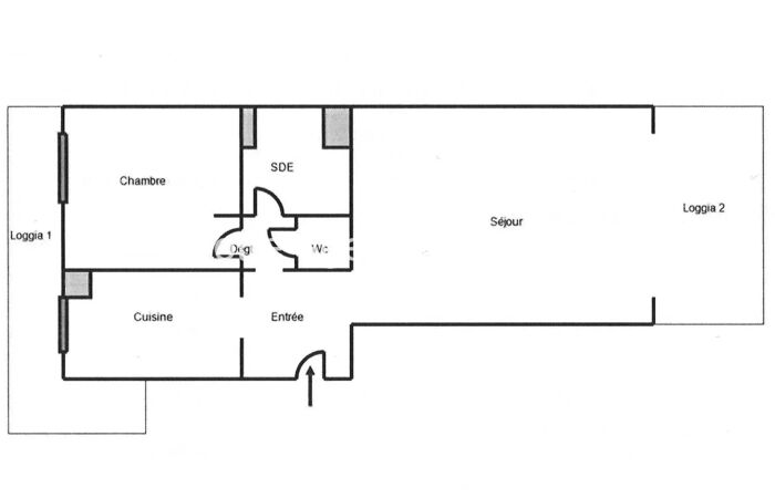
Nice Riquier - 3 Pièces de 60 m² avec parking Nice Riquier/TNL - Au 5éme et dernier étage avec ascenseur, dans un ancien immeuble récemment ravalé - Appartement de 60 m², offrant un très fort potentiel de transformation. Actuellement composé de deux chambres, d'une cuisine indépendante, d'un séjour, d'une salle de douche avec toilette et d'un bureau (ou dressing - la cloison de cette chambre pouvant être enlevée pour agrandir le séjour). Appartement traversant Est-Ouest. Emplacement très recherché pour résidence principale ou investissement locatif - proche de la gare Riquier, du tramway, de carrefour TNL et de la facultés St Jean d'Angely. Une place de Parking situé à 3 minutes à pieds (rue Smolett) complète ce bien. Photos en attente. Nombre de lots: 17 Charges annuelle: 760euros

Référence : 3688

Informations complémentaires

  • Descriptif
    • Étage du bien : 5eme
    • Nb. de WC : 1
    • Nb. de salles d'eau : 1
    • Ascenseur
    • Nbre. d'étages : 5
    • Nbre. de chambres : 2
    • Nb. Parking : 1
    • Nb. de pièces : 3
  • Conditions
    • Prix hors honoraires acquéreur : 275 500 €
    • Honoraires à charge de : acquéreur
    • Pourcentage des honoraires acquéreur : 5,26
  • Environnement
    • Quartier : Riquier
    • Orientation : est,ouest
  • Equipement
    • Chauffage : individuel gaz radiateur
    • Interphone
  • Superficies
    • Surface habitable : 60 m²

Diagnostic de Performance Énergétique (DPE)

DPE/GES graphiques

Contactez nous

Pour plus d'informations sur cette annonce, n'hésitez pas à nous contacter

Votre Agence Immo
33 67 29 52 65 4
Voir la fiche de l'agence
Voir tous les biens
Site de l'agence

Ou via le formulaire de contact :

Annonce 18 / 27

« Retour à la liste »

    Inscrivez-vous pour recevoir nos newsletter :

    Espace Pro
    • Magazine et site web d’annonces immobilières
    • Actualité immobilière à Nice, Cannes et de la côte d’Azur
    • Mentions Légales et RGPD
    En poursuivant votre navigation, vous acceptez l’utilisation de cookies à des fins statistiques et de personnalisation.J'accepteEn savoir plus