Votre sélection
0

Toute votre sélection

Évidence Immobilière
Menu
  • Accueil
  • Annonces immobilières
  • Agences
  • Mandats exclusifs
  • Programmes neufs
  • Magazines
  • Digital+
  • Contact
  • Alerte email
+ de détails - de détails
+ de détails - de détails
+ de détails - de détails

Annonce détaillée

Annonce 7 / 28

« Retour à la liste »

Nice (06200) - Appartement - 220 000 €

Mandat exclusif

Nice (06200)

2 pièces - 48 m²

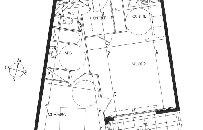
Nice Méridia 2 pièces en étage terrasse + possibilité garage EXCLUSIVITÉ – Nice Méridia / JOIA- Superbe 2 pièces en étage élevé avec terrasse – Résidence récente Dans le dynamique quartier de JOIA, à proximité du futur campus universitaire et de toutes les commodités, découvrez ce lumineux 2 pièces de 49 m² env, situé en étage élevé d’une copropriété sécurisée récente (2012). Cet appartement bénéficie d’une belle luminosité grâce à son exposition et ses grandes ouvertures. Il se compose d’une spacieuse pièce de vie avec cuisine américaine, ouverte sur une agréable terrasse de 6 m², idéale pour vos moments de détente. La chambre, elle aussi tournée vers l’extérieur, profite de la même ouverture. L’agencement est complété par une salle d’eau, des toilettes séparées avec lave-mains, ainsi que de nombreux rangements sur mesure. Le tout est climatisé pour un confort optimal, avec la possibilité d’acquérir un garage en supplément. Atouts clés : -Quartier en plein essor, proche tramway (Ligne 3) -Résidence sécurisée (2012) -Étage élevé, appartement d’angle lumineux -Terrasse de 6 m² accessible du séjour et chambre -Nombreux rangements sur mesure -Climatisation -Possibilité de garage Accès rapide à l’aéroport, commerces et axes routiers Une belle opportunité à saisir, aussi bien pour un investissement que pour une résidence principale. À visiter sans tarder ! Bien soumis à la copropriété Nombre de lots:152 dont XX appartements charges courantes annuelles: 1740euros Les informations sur les risques auxquels ce bien est exposé sont disponibles sur le site Géorisques : georisques.gouv.fr.

Référence : 85996204

Informations complémentaires

  • Descriptif
    • Étage du bien : 4eme
    • Nb. de WC : 1
    • Nb. de salles de bain : 1
    • Terrasse
    • Ascenseur
    • Nbre. d'étages : 5
    • Accès handicapés
    • Nbre. de chambres : 1
    • Nb. de pièces : 2
  • Conditions
    • Prix hors honoraires acquéreur : 209 524 €
    • Honoraires à charge de : acquéreur
    • Pourcentage des honoraires acquéreur : 5.00 %
  • Environnement
    • Vue : Dégagée
    • Quartier : Sainte Marguerite
  • Equipement
    • Chauffage : individuel electrique
    • Climatisation
  • Loi ALUR
    • Copropriété
    • Moyenne de la quote part(an) : 1 716 €
  • Superficies
    • Surface terrasse : 6.8 m²
    • Surface habitable : 48 m²
  • Etat
    • Année de construction : 2012

Diagnostic de Performance Énergétique (DPE)

DPE/GES graphiques

Contactez nous

Pour plus d'informations sur cette annonce, n'hésitez pas à nous contacter

Votre Agence Immo
04 92 12 12 62
Voir la fiche de l'agence
Voir tous les biens
Site de l'agence

Ou via le formulaire de contact :

Annonce 7 / 28

« Retour à la liste »

    Inscrivez-vous pour recevoir nos newsletter :

    Espace Pro
    • Magazine et site web d’annonces immobilières
    • Actualité immobilière à Nice, Cannes et de la côte d’Azur
    • Mentions Légales et RGPD
    En poursuivant votre navigation, vous acceptez l’utilisation de cookies à des fins statistiques et de personnalisation.J'accepteEn savoir plus