Votre sélection
0

Toute votre sélection

Évidence Immobilière
Menu
  • Accueil
  • Annonces immobilières
  • Agences
  • Mandats exclusifs
  • Programmes neufs
  • Magazines
  • Digital+
  • Contact
  • Alerte email
+ de détails - de détails
+ de détails - de détails
+ de détails - de détails

Annonce détaillée

Annonce 86 / 125

« Retour à la liste »

Nice (06300) - T4 - 350 000 €

Mandat exclusif

Nice (06300)

4 pièces - 90 m²

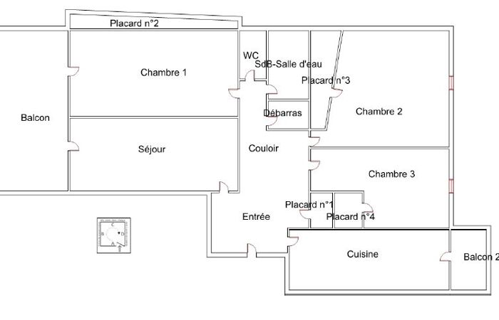
Grand 4 PIECES traversant de 90,07 m² au 3ème étage avec ascenseur comprenant une entrée avec placard, un séjour donnant sur une terrasse de 10 m², une cuisine indépendante donnant sur un balcon sur cour au calme, 3 chambres avec grands placards dont une donnant sur la terrasse, un dressing, une salle de bains et un WC indépendant. Climatisation réversible, volets électriques, double vitrage, nombreux rangements. Exposition Est/Ouest. Copropriété sécurisée. Possibilité d'un garage avec cave attenante en supplément. Proche de toutes les commodités (tramway, gare de Riquier, fac St Jean d'Angely, cinéma Megarama, etc...). EXCLUSIVITE ORPI !
Référence agence : 1505

Référence : 1505

Informations complémentaires

  • Descriptif
    • Cave
    • Étage du bien : 3eme
    • Nb. de WC : 1
    • Balcon
    • Nb. de salles de bain : 1
    • Terrasse
    • Ascenseur
    • Nbre. d'étages : 8
    • Nbre. de chambres : 3
    • Nb. Parking : 1
    • Nb. de pièces : 4
  • Loi ALUR
    • Copropriété
    • Nombre de lots de la copropriété : 111
    • Moyenne de la quote part(an) : 3 960 €
  • Conditions
    • Taxe foncière : 1 125 €
    • Prix hors honoraires acquéreur : 350 000 €
    • Honoraires à charge de : vendeur
  • Equipement
    • Chauffage : collectif
    • Climatisation
  • Superficies
    • Surface carrez : 90.07 m²
    • Surface habitable : 90 m²
  • Etat
    • État general : bon

Diagnostic de Performance Énergétique (DPE)

DPE/GES graphiques

Contactez nous

Pour plus d'informations sur cette annonce, n'hésitez pas à nous contacter

Immobilière Gti
04 93 62 41 62
Voir la fiche de l'agence
Voir tous les biens
Site de l'agence

Ou via le formulaire de contact :

Annonce 86 / 125

« Retour à la liste »

    Inscrivez-vous pour recevoir nos newsletter :

    Espace Pro
    • Magazine et site web d’annonces immobilières
    • Actualité immobilière à Nice, Cannes et de la côte d’Azur
    • Mentions Légales et RGPD
    En poursuivant votre navigation, vous acceptez l’utilisation de cookies à des fins statistiques et de personnalisation.J'accepteEn savoir plus