Votre sélection
0

Toute votre sélection

Évidence Immobilière
Menu
  • Accueil
  • Annonces immobilières
  • Agences
  • Mandats exclusifs
  • Programmes neufs
  • Magazines
  • Digital+
  • Contact
  • Alerte email
+ de détails - de détails
+ de détails - de détails
+ de détails - de détails

Annonce détaillée

Annonce 9 / 36

« Retour à la liste »

Agay (83530) - Appartement - 280 000 €

Agay (83530)

2 pièces - 36 m²

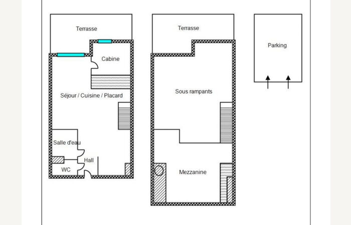
Offrant une vue mer panoramique, situé en dernier étage d'une copropriété fermée avec piscines, ce bel appartement dispose d'une luminosité très agréable. Le bien est climatisé et dispose de 2 espaces nuits ainsi que d'une terrasse offrant un panorama sur l'horizon, l'Esterel et la baie d'Agay. Il est composé d'un séjour avec cuisine équipée sur 17m2, d'une chambre en mezzanine de 12m2, d'une cabine avec lit double, d'une salle d'eau rénovée et d'un WC indépendant. Sa terrasse orientée vers de fabuleux couchés de soleil offre un lieu ensoleillé et dépaysant. Les commerces et la plage sont à deux pas, une place de parking privée complète l'appartement et des parkings visiteurs sont présents dans la copropriété. Notre équipe Millésime Immobilier spécialiste du secteur d'Agay vous accueille pour visiter ce bien.
Les informations sur les risques auxquels ce bien est exposé sont disponibles sur le site Géorisques : www.georisques.gouv.fr 1

Référence : 579

Informations complémentaires

  • Descriptif
    • Étage du bien : 2eme
    • Nb. de WC : 1
    • Meublé
    • Nb. de salles d'eau : 1
    • Terrasse
    • Nbre. d'étages : 4
    • Nbre. de chambres : 1
    • Nb. Parking : 1
    • Nb. de pièces : 2
  • Equipement
    • Chauffage : individuel
    • Interphone
    • Climatisation
  • Loi ALUR
    • Copropriété
    • Nombre de lots de la copropriété : 18
    • Moyenne de la quote part(an) : 1 100 €
  • Superficies
    • Surface terrasse : 7.2 m²
    • Surface habitable : 36 m²
  • Extérieur
    • Piscine
  • Environnement
    • Orientation : sud,ouest
  • Etat
    • Année de construction : 1985
  • Conditions
    • Honoraires à charge de : vendeur

Diagnostic de Performance Énergétique (DPE)

DPE/GES graphiques
Coût énergétique minimum : 514 €
Coût énergétique maximum : 696 €
Année de référence consommation : 01/01/2025

Contactez nous

Pour plus d'informations sur cette annonce, n'hésitez pas à nous contacter

Millesime Immobilier - Agence d'Agay
04 94 82 02 60
Voir la fiche de l'agence
Voir tous les biens
Site de l'agence

Ou via le formulaire de contact :

Annonce 9 / 36

« Retour à la liste »

    Inscrivez-vous pour recevoir nos newsletter :

    Espace Pro
    • Magazine et site web d’annonces immobilières
    • Actualité immobilière à Nice, Cannes et de la côte d’Azur
    • Mentions Légales et RGPD
    En poursuivant votre navigation, vous acceptez l’utilisation de cookies à des fins statistiques et de personnalisation.J'accepteEn savoir plus