Votre sélection
0

Toute votre sélection

Évidence Immobilière
Menu
  • Accueil
  • Annonces immobilières
  • Agences
  • Mandats exclusifs
  • Programmes neufs
  • Magazines
  • Digital+
  • Contact
  • Alerte email
+ de détails - de détails
+ de détails - de détails
+ de détails - de détails

Annonce détaillée

Annonce 137 / 236

« Retour à la liste »

Nice (06000) - Appartement - 449 000 €

Nice (06000)

3 pièces - 88 m²

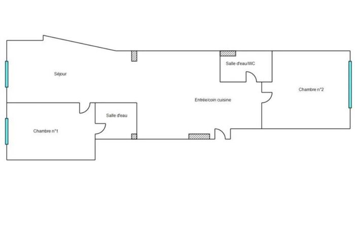
Appartement 3 Pièces Nice Carré d'Or Nice Carré d'Or - Au 1er étage avec ascenseur d'un immeuble de standing, parfaitement entretenu et sécurisé, ce bel appartement de 3 pièces principales offre de beaux volumes et se compose comme suit : - une vaste pièce à vivre avec cuisine ouverte, aménagée et équipée, - deux chambres avec rangements dont une avec salle de douches attenante, - une salle de douches avec wc, - dégagements. En excellent état, cet appartement conviendra aussi bien pour une résidence principale que pour un pied-à-terre. Profession libérale autorisée dans la copropriété. Situé à proximité immédiate de la promenade des Anglais et des commerces du quartier prisé du Carré d'Or, cet appartement est calme et lumineux. Prix de vente : 449.000euros (honoraires à la charge du vendeur), Charges courantes mensuelles : 350euros (comprenant les consommations d'eau froide, d'eau chaude, de chauffage ainsi que les charges de copropriété), Taxe foncière : 1515euros. 'Les informations sur les risques auxquels ce bien est exposé sont disponibles sur le site Géorisques : georisques.gouv.fr' Pour toutes demandes d'informations et visite, merci de contacter Vincent LOUPIE au +33615579149

Référence : 2119

Informations complémentaires

  • Descriptif
    • Étage du bien : 1er
    • Nb. de WC : 1
    • Nb. de salles d'eau : 2
    • Ascenseur
    • Nbre. de chambres : 2
    • Nb. de pièces : 3
  • Equipement
    • Chauffage : collectif
    • Interphone
    • Climatisation
  • Loi ALUR
    • Copropriété
    • Nombre de lots de la copropriété : 34
    • Moyenne de la quote part(an) : 4 200 €
  • Environnement
    • Quartier : Carré d'or
    • Orientation : sud
  • Etat
    • Année de construction : 1971
  • Conditions
    • Honoraires à charge de : vendeur
  • Superficies
    • Surface habitable : 88 m²

Diagnostic de Performance Énergétique (DPE)

DPE/GES graphiques
Coût énergétique minimum : 800 €
Coût énergétique maximum : 1090 €
Année de référence consommation : 14/01/2026

Contactez nous

Pour plus d'informations sur cette annonce, n'hésitez pas à nous contacter

Maison Orea
33 61 55 79 14 9
Voir la fiche de l'agence
Voir tous les biens
Site de l'agence

Ou via le formulaire de contact :

Annonce 137 / 236

« Retour à la liste »

    Inscrivez-vous pour recevoir nos newsletter :

    Espace Pro
    • Magazine et site web d’annonces immobilières
    • Actualité immobilière à Nice, Cannes et de la côte d’Azur
    • Mentions Légales et RGPD
    En poursuivant votre navigation, vous acceptez l’utilisation de cookies à des fins statistiques et de personnalisation.J'accepteEn savoir plus