Votre sélection
0

Toute votre sélection

Évidence Immobilière
Menu
  • Accueil
  • Annonces immobilières
  • Agences
  • Mandats exclusifs
  • Programmes neufs
  • Magazines
  • Digital+
  • Contact
  • Alerte email
+ de détails - de détails
+ de détails - de détails
+ de détails - de détails

Annonce détaillée

Annonce 90 / 112

« Retour à la liste »

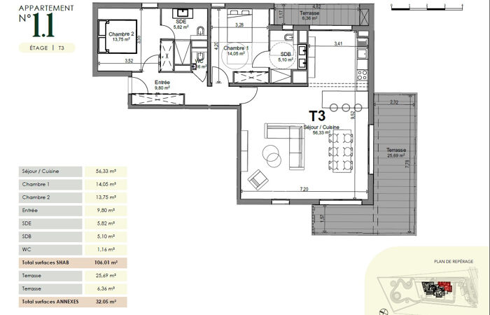
Saint Raphael (83700) - Appartement - 1 305 000 €

Saint Raphael (83700)

3 pièces - 106 m²

Vous hésitez entre une petite villa et un appartement, nous avons ce qu'il vous faut: Villa Emma Swing est pensée pour vous.
Idéalement située au coeur du Golf de Valescure et des commerces, Emma Swing vous propose 8 appartements de luxe au sein d'une résidence exclusive qui conjugue l'élégance d'une villa avec le confort d'un appartement. Volumes généreux, prestations personnalisées, espaces arborés, chaque détail est pensé pour sublimer votre quotidien.

N'hésitez pas à contacter l'agence du Cap au 04.94.82.48.38 ou le 06.85.59.61.98, pour toutes informations complémentaires.
Copropriété de 8 lots (Pas de procédure en cours).

Référence : 9820a

Informations complémentaires

  • Descriptif
    • Étage du bien : 1er
    • Nb. de WC : 3
    • Nb. de salles d'eau : 2
    • Terrasse
    • Ascenseur
    • Nbre. d'étages : 1
    • Nbre. de chambres : 2
    • Nb. de pièces : 3
  • Loi ALUR
    • Copropriété
    • Nombre de lots de la copropriété : 8
    • Détail de la procédure : Pas de procédure en cours
  • Environnement
    • Calme
    • Orientation : sud
  • Equipement
    • Chauffage : individuel
    • Climatisation
  • Superficies
    • Surface terrasse : 26 m²
    • Surface habitable : 106 m²
  • Etat
    • Année de construction : 2026
  • Conditions
    • Honoraires à charge de : vendeur

Diagnostic de Performance Énergétique (DPE)

DPE/GES graphiques

Contactez nous

Pour plus d'informations sur cette annonce, n'hésitez pas à nous contacter

Agence Immogolf
04 94 82 48 38
Voir la fiche de l'agence
Voir tous les biens
Site de l'agence

Ou via le formulaire de contact :

Annonce 90 / 112

« Retour à la liste »

    Inscrivez-vous pour recevoir nos newsletter :

    Espace Pro
    • Magazine et site web d’annonces immobilières
    • Actualité immobilière à Nice, Cannes et de la côte d’Azur
    • Mentions Légales et RGPD
    En poursuivant votre navigation, vous acceptez l’utilisation de cookies à des fins statistiques et de personnalisation.J'accepteEn savoir plus