Votre sélection
0

Toute votre sélection

Évidence Immobilière
Menu
  • Accueil
  • Annonces immobilières
  • Agences
  • Mandats exclusifs
  • Programmes neufs
  • Magazines
  • Digital+
  • Contact
  • Alerte email
+ de détails - de détails
+ de détails - de détails
+ de détails - de détails

Annonce détaillée

Annonce 102 / 112

« Retour à la liste »

Saint Raphael (83700) - Appartement - 1 670 000 €

Saint Raphael (83700)

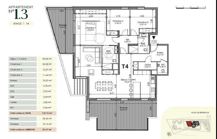
4 pièces - 140 m²

Nichée dans un environnement verdoyant et sécurisé, découvrez un art de vivre rare, entre nature préservée et raffinement absolu. Villa Emma Swing vous propose une résidence exclusive composée de seulement 8 appartements haut de gamme, conçus pour celles et ceux qui souhaitent conjuguer l'élégance d'une villa avec le confort d'un appartement. Volumes généreux, prestations personnalisées, espaces arborés, chaque détail est pensé pour sublimer votre quotidien. , Villa Emma Swing vous accueille dans un domaine intimiste et préservé. Elle offre de beaux volumes intérieurs, allie architecture élégante, matériaux nobles et technologies de pointe.

N'hésitez pas à contacter l'agence du Cap pour toutes informations complémentaires au 04.94.82.48.38 ou 06.85.59.61.98.

Copropriété de 8 lots (Pas de procédure en cours).

Référence : 9820

Informations complémentaires

  • Descriptif
    • Étage du bien : 1er
    • Nb. de WC : 3
    • Nb. de salles d'eau : 2
    • Ascenseur
    • Nbre. d'étages : 1
    • Nbre. de chambres : 3
    • Nb. de pièces : 4
  • Loi ALUR
    • Copropriété
    • Nombre de lots de la copropriété : 8
    • Détail de la procédure : Pas de procédure en cours
  • Environnement
    • Calme
    • Orientation : ouest
  • Equipement
    • Chauffage : individuel
    • Climatisation
  • Superficies
    • Surface terrasse : 53 m²
    • Surface habitable : 140 m²
  • Etat
    • Année de construction : 2026
  • Conditions
    • Honoraires à charge de : vendeur

Diagnostic de Performance Énergétique (DPE)

DPE/GES graphiques

Contactez nous

Pour plus d'informations sur cette annonce, n'hésitez pas à nous contacter

Agence Immogolf
04 94 82 48 38
Voir la fiche de l'agence
Voir tous les biens
Site de l'agence

Ou via le formulaire de contact :

Annonce 102 / 112

« Retour à la liste »

    Inscrivez-vous pour recevoir nos newsletter :

    Espace Pro
    • Magazine et site web d’annonces immobilières
    • Actualité immobilière à Nice, Cannes et de la côte d’Azur
    • Mentions Légales et RGPD
    En poursuivant votre navigation, vous acceptez l’utilisation de cookies à des fins statistiques et de personnalisation.J'accepteEn savoir plus