Votre sélection
0

Toute votre sélection

Évidence Immobilière
Menu
  • Accueil
  • Annonces immobilières
  • Agences
  • Mandats exclusifs
  • Programmes neufs
  • Magazines
  • Digital+
  • Contact
  • Alerte email
+ de détails - de détails
+ de détails - de détails
+ de détails - de détails

Annonce détaillée

Nice (06200) - Appartement - 279 000 €

Mandat exclusif

Nice (06200)

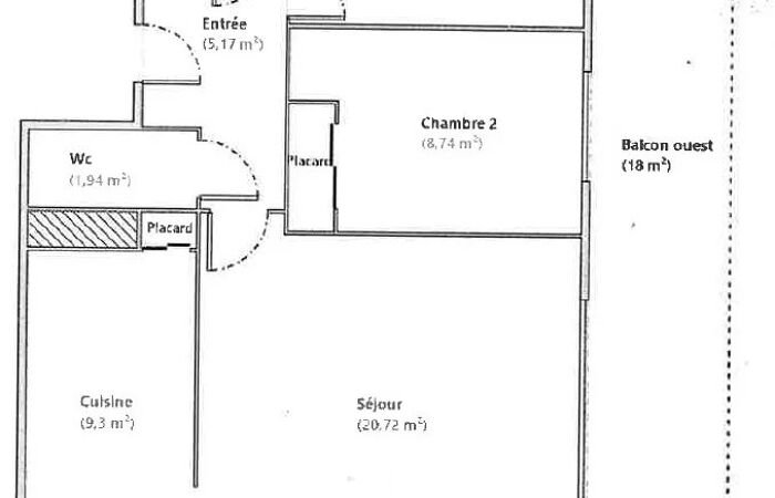
3 pièces - 59 m²

Nice - Avenue Sainte Marguerite - 3pièces, terrasses, parking Situé dans le quartier de Sainte-Marguerite, au sein d’une copropriété fermée et sécurisée des années 1990, à proximité immédiate de toutes les commodités, bel appartement 3 pièces de 60 m², idéalement distribué et au calme absolu.

Il s’ouvre sur une agréable pièce de vie de 30 m² avec cuisine ouverte, prolongée par deux terrasses de 18 m² et 10 m². L’espace nuit comprend deux chambres, une salle de bains ainsi qu’un WC indépendant.

Une cave en sous-sol et une place de stationnement privative extérieure complètent ce bien.

L’appartement bénéficie d’un environnement résidentiel et paisible, à proximité des commerces, transports en commun, écoles et jardins, avec un accès rapide à l’autoroute et à l’aéroport.

« Les informations sur les risques auxquels ce bien est exposé sont disponibles sur le site Géorisques : georisques.gouv.fr. » Pour toutes demandes d'informations et visite, merci de contacter Severine FERRAND au +33662180723

Référence : 2138

Informations complémentaires

  • Descriptif
    • Étage du bien : 2eme
    • Nb. de WC : 1
    • Nb. de salles de bain : 1
    • Terrasse
    • Ascenseur
    • Nbre. d'étages : 4
    • Accès handicapés
    • WC séparés
    • Nbre. de chambres : 2
    • Nb. de pièces : 3
  • Environnement
    • Vue : Dégagée
    • Quartier : Sainte Marguerite
  • Equipement
    • Chauffage : individuel gaz radiateur
    • Interphone
  • Superficies
    • Surface terrasse : 27 m²
    • Surface habitable : 59 m²
  • Conditions
    • Honoraires à charge de : vendeur

Diagnostic de Performance Énergétique (DPE)

DPE/GES graphiques
Coût énergétique minimum : 685 €
Coût énergétique maximum : 927 €

Contactez nous

Pour plus d'informations sur cette annonce, n'hésitez pas à nous contacter

Maison Orea
06 62 18 07 23
Voir la fiche de l'agence
Voir tous les biens
Site de l'agence

Ou via le formulaire de contact :

    Inscrivez-vous pour recevoir nos newsletter :

    Espace Pro
    • Magazine et site web d’annonces immobilières
    • Actualité immobilière à Nice, Cannes et de la côte d’Azur
    • Mentions Légales et RGPD
    En poursuivant votre navigation, vous acceptez l’utilisation de cookies à des fins statistiques et de personnalisation.J'accepteEn savoir plus