Votre sélection
0

Toute votre sélection

Évidence Immobilière
Menu
  • Accueil
  • Annonces immobilières
  • Agences
  • Mandats exclusifs
  • Programmes neufs
  • Magazines
  • Digital+
  • Contact
  • Alerte email
+ de détails - de détails
+ de détails - de détails
+ de détails - de détails

Annonce détaillée

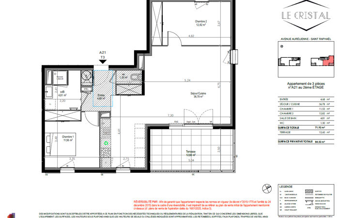
Saint Raphael (83700) - Appartement - 382 000 €

Saint Raphael (83700)

3 pièces - 72 m²

À vendre : Magnifique appartement de 72 m² situé au 2ème étage d'un immeuble à Saint-Raphaël, proche du centre-ville. Ce bien spacieux comprend 3 pièces, 2 chambres, et dispose d'un grand séjour lumineux de 37 m². Profitez d'une cuisine américaine moderne, de une salle d'eau et de un WC. L'appartement est exposé sud/est, offrant une belle luminosité tout au long de la journée.

À l'extérieur, vous bénéficierez d'une terrasse de 13 m², idéale pour vos moments de détente. Les équipements incluent la climatisation réversible, un chauffage par air pulsé, ainsi que des fenêtres en double vitrage.

Pour votre confort, l'immeuble est équipé d'un digicode, d'un portail électrique et de la fibre optique. parkings disponibles pour 12 000 € l'unité et cave pour 3 500 €.

Localisation privilégiée : à seulement 1 km de la mer et à 200 m des commerces. À proximité, vous trouverez plusieurs établissements scolaires tels que l'École primaire Les Arènes, l'École maternelle La Lauve, et le Lycée Antoine de Saint-Exupéry.

Ne manquez pas cette opportunité ! Contactez l'agence IMMOGOLF - Valescure pour plus d'informations.
Copropriété de 11 lots ().
Charges annuelles : 2000.00 euros.

Référence : 9772u

Informations complémentaires

  • Descriptif
    • Étage du bien : 2eme
    • Nb. de WC : 1
    • Nb. de salles d'eau : 1
    • Ascenseur
    • Nbre. d'étages : 3
    • Nbre. de chambres : 2
    • Nb. de pièces : 3
  • Equipement
    • Digicode
    • Chauffage : individuel
    • Interphone
    • Climatisation
  • Loi ALUR
    • Copropriété
    • Nombre de lots de la copropriété : 11
    • Moyenne de la quote part(an) : 2 000 €
  • Environnement
    • Quartier : PROCHE CENTRE-VILLE
    • Orientation : sud,est
  • Superficies
    • Surface terrasse : 13 m²
    • Surface habitable : 72 m²
  • Conditions
    • Honoraires à charge de : vendeur

Diagnostic de Performance Énergétique (DPE)

DPE/GES graphiques

Contactez nous

Pour plus d'informations sur cette annonce, n'hésitez pas à nous contacter

Agence Immogolf
04 94 82 48 38
Voir la fiche de l'agence
Voir tous les biens
Site de l'agence

Ou via le formulaire de contact :

    Inscrivez-vous pour recevoir nos newsletter :

    Espace Pro
    • Magazine et site web d’annonces immobilières
    • Actualité immobilière à Nice, Cannes et de la côte d’Azur
    • Mentions Légales et RGPD
    En poursuivant votre navigation, vous acceptez l’utilisation de cookies à des fins statistiques et de personnalisation.J'accepteEn savoir plus