Votre sélection
0

Toute votre sélection

Évidence Immobilière
Menu
  • Accueil
  • Annonces immobilières
  • Agences
  • Mandats exclusifs
  • Programmes neufs
  • Magazines
  • Digital+
  • Contact
  • Alerte email
+ de détails - de détails
+ de détails - de détails
+ de détails - de détails

Annonce détaillée

Nice (06100) - Appartement - 359 000 €

Mandat exclusif

Nice (06100)

3 pièces - 95 m²

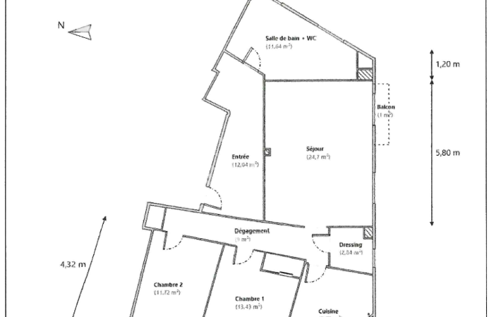
NICE NORD - HORLOGE DE CESSOLE - Idéalement situé, proche de tout ! Commerces, Ecoles, Transports en commun. Spacieux 3/4 PIECES de 95 m2 offrant de beaux volumes et un fort potentiel avec possibilité de division en 2 appartements indépendants. Au 2ème étage d'un immeuble niçois ancien de caractère, Triple exposition Sud-Est-Ouest, bel espace séjour lumineux, hauts plafonds, cuisine équipée, double vitrage, 2 caves. Charges annuelles : 3432 EUR. Copropriété de 22 lots dont 11 appartements, DPE : E-276 et GES : B-9, info sur les risques naturels disponible sur www.georisques.gouv.fr. Honoraire d'agence 6% TTC à charge acquéreur

Référence : 4911

Informations complémentaires

  • Descriptif
    • Cave
    • Étage du bien : 2eme
    • Nb. de WC : 1
    • Nb. de salles de bain : 1
    • Nbre. d'étages : 3
    • Nbre. de chambres : 2
    • Nb. de pièces : 3
  • Conditions
    • Date disponibilité : immédiate
    • Prix hors honoraires acquéreur : 338 700 €
    • Honoraires à charge de : acquéreur
    • Pourcentage des honoraires acquéreur : 5,99
  • Loi ALUR
    • Copropriété
    • Nombre de lots de la copropriété : 22
    • Moyenne de la quote part(an) : 3 432 €
  • Environnement
    • Quartier : Commerces-Ecoles
    • Orientation : sud
  • Superficies
    • Surface du balcon : 3 m²
    • Surface habitable : 95 m²
  • Equipement
    • Chauffage : individuel electrique radiateur
  • Etat
    • Année de construction : 1930

Diagnostic de Performance Énergétique (DPE)

DPE/GES graphiques
Coût énergétique minimum : 2010 €
Coût énergétique maximum : 2750 €
Année de référence consommation : 01/01/2023

Contactez nous

Pour plus d'informations sur cette annonce, n'hésitez pas à nous contacter

Inter Immobilier
06 64 74 23 52
Voir la fiche de l'agence
Voir tous les biens
Site de l'agence

Ou via le formulaire de contact :

    Inscrivez-vous pour recevoir nos newsletter :

    Espace Pro
    • Magazine et site web d’annonces immobilières
    • Actualité immobilière à Nice, Cannes et de la côte d’Azur
    • Mentions Légales et RGPD
    En poursuivant votre navigation, vous acceptez l’utilisation de cookies à des fins statistiques et de personnalisation.J'accepteEn savoir plus