Votre sélection
0

Toute votre sélection

Évidence Immobilière
Menu
  • Accueil
  • Annonces immobilières
  • Agences
  • Mandats exclusifs
  • Programmes neufs
  • Magazines
  • Digital+
  • Contact
  • Alerte email
+ de détails - de détails
+ de détails - de détails
+ de détails - de détails

Annonce détaillée

Nice (06000) - Bureau - 2 150 € CC /mois

Nice (06000)

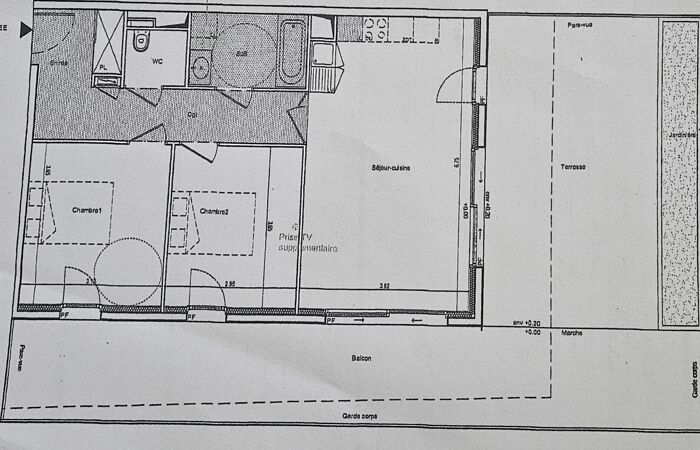
3 pièces - 65 m²

A LOUER BUREAU 65 M² AVEC TERRASSE 126 M² - NICE MALAUSSENA A LOUER BUREAU 65 M² AVEC TERRASSE 126 M² - NICE MALAUSSENA A louer bureau sur la libération, Place Général de Gaule d'environ 65 m² avec une terrasse d'angle de 126 m² en très bon état, disposé en 3 / 4 pièces, grand 2 bureaux, petite cuisine et salle d'eau. Climatisation réversible, accès PMR. Possibilité parking en sous sol en sus. (150 euros / mois) Conditions de prise à bail: - Bail professionnel - Loyer 2 000 euros / mois - Provisions sur charges 150 euros / mois - Provision taxe foncière 1973 euros / an soit 165 euros / mois - Non assujetti à la TVA - Dépôt de garantie 2 mois de loyer HC - Honoraires : 10 % HT du loyer triennal à la charge du preneur Pour toutes demandes d'informations et visite, merci de contacter Maxime PUCCINELLI au +33614340187

Référence : 202

Informations complémentaires

  • Descriptif
    • Étage du bien : 2eme
    • Ascenseur
    • Accès handicapés
    • Nb. Parking : 1
    • Nb. de pièces : 3
  • Environnement
    • Vue : Dégagée
    • Quartier : Libération
    • Orientation : sud
  • Conditions
    • Charges : 150 €
    • Loyer de base : 2 000 €
    • Règlement des charges : provisionnel
  • Equipement
    • Chauffage : individuel electrique
    • Climatisation
  • Superficies
    • Surface habitable : 65 m²

Contactez nous

Pour plus d'informations sur cette annonce, n'hésitez pas à nous contacter

Maison Orea
06 14 34 01 87
Voir la fiche de l'agence
Voir tous les biens
Site de l'agence

Ou via le formulaire de contact :

    Inscrivez-vous pour recevoir nos newsletter :

    Espace Pro
    • Magazine et site web d’annonces immobilières
    • Actualité immobilière à Nice, Cannes et de la côte d’Azur
    • Mentions Légales et RGPD
    En poursuivant votre navigation, vous acceptez l’utilisation de cookies à des fins statistiques et de personnalisation.J'accepteEn savoir plus